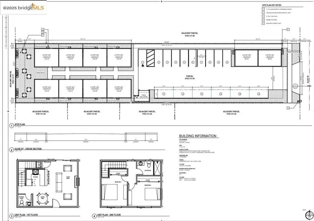
Huge Development Opportunity in Prime Fontana Location! Plans Nearly Approved - Build a 10-Unit Apartment Complex! Lot Size: 0.43 Acres | 18,900 Sq Ft. Calling all investors, builders, and developers! This rare Fontana gem is a prime opportunity to build a high-demand multi-family project on a spacious 0.43-acre lot. The current owners have invested over $50,000 and more than 2+ years of effort to secure critical approvals including PAM (Plan of Action and Mitigation) approval. Only the Design Review phase remains before you're ready to break ground on a 10-unit apartment complex, with each unit designed as a 2-bedroom, 2-bathroom layout. ? Property Highlights: PAM Approved - Major milestone completed! 10-Unit Apartment Plan - Each unit: 2 bed / 2 bath. Only Design Review Left - Nearly shovel-ready. $50K+ Already Invested in Approvals - Save 2+ years of time and $50K+ money. Large Lot (18,900 sq ft) - Room for parking, landscaping, or amenities. Centrally located near schools, parks, shopping, and major freeways. Existing 2 bed / 1 bath home (1,095 sq ft) currently on site - great for staging or rental during development. Tremendous Land Value in a fast-growing market. This is YOUR chance to develop a high-yield income producing 10+ units property.
41094023
Residential - Single Family, 1 Story
2
1 Full
1922
San Bernardino
0.4339
Acres
1
See Remarks
Public Sewer
Loading...
The scores below measure the walkability of the address, access to public transit of the area and the convenience of using a bike on a scale of 1-100
Walk Score
Transit Score
Bike Score
Loading...
Loading...
